The Globe
100 Cecil Street, Singapore 069532
Specifications
- Year of completion:
- 1991
- Building height:
- 15 storeys
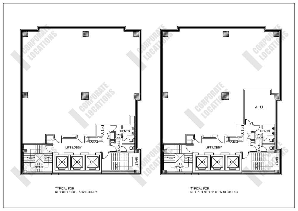
- Typical size floor plate:
- 2,500 - 3000 sq ft
- Ownership:
- Single
- On-site car parking:
- Yes
- Car Park Allocation:
- TBC
- Nearest MRT Station:
- Telok Ayer
Units available: On Application
Gross inclusive of service charge
TBC
Our agents cover ALL buildings
To request further information or arrange a viewing, contact any one of us.
Units available to be confirmed
Features
150 mm raised flooring
Efficient shape floor plate
Easy access to MRT station
Side service core
Centralized Air-con 8.00am to 6.00pm Mon – Fri 8.00am to 2.00pm Sat
Current Occupiers Include
Description of The Globe with Offices for Lease
Low rent offices for lease rent on Cecil Street in the heart of the Financial District
Built 1991, this 15-storey office tower has an average floor plate of 2,500 sq ft, subdivisible into 2 units, suitable for those looking for small office space for lease. The space has raised flooring, windows on 3 elevations and is almost column free. Side service core with 3 passenger lifts. Limited car parking. Close to Telok Ayer MRT station.
We Specialize in:
Singapore Office rentals, Commercial Property for rent, Finding the best office rental opportunities in Singapore, helping tenants find offices for rent in Singapore, advising tenants on Singapore office rental rates, co-working spaces, business centers, prime offices for lease, premium office space for lease, cheap offices to rent, flexible work space and All Office Rental Services
We cover all office buildings including:
Robinson Road / Tanjong Pagar
135 Cecil Street (Philippine Airlines Building), 137 Telok Ayer Street, 139 Cecil Street (YSY Building), 150 Cecil Street, 158 Cecil Street, 61 Robinson Road, ABI Plaza, Bangkok Bank Building, Cecil Court, ERH Building , Far East Finance Building, Far East Square, GB Building, Hub Synergy Point, International Plaza, IOB Building, Jit Poh Building, Keck Seng Tower, Keppel 1557, Nankin Row Shophouses, Shenton House, Shophouse Office, Southpoint, The Octagon, Tong Eng Building, UOI Building
Raffles Place / Downtown
6 Raffles Quay, Bharat Building, Capital Square 3, OCBC Centre South, One Finlayson Green, PLUS, Prudential Tower, Royal Group Building, Royal One Phillip, Samsung Hub, The House of Eden, UOB Plaza I
City Hall / Beach Road / Marina Centre
25 North Bridge Road, 47 Hill Street, Bugis Junction Towers, Duo Tower, Funan, Millenia Tower, Odeon 331, OG Albert Complex, Parkview Square, Peninsula Plaza, Raffles City Tower, South Beach Tower, Suntec Tower 1, Suntec Tower 2, Suntec Tower 3, Suntec Tower 4, Suntec Tower 5, The Adelphi, The Concourse, The Gateway East, The Gateway West
Search for all offices to rent in all districts and budget ranges through our Office Search tool or Building Index on our Home Page at www.corporatelocations.com.sg.
Contact us now for a full summary of offices for lease that match your specific office requirements by 'Requesting a Summary' or call anytime (Tel: 6391 5212) for a free consultation on your commercial property needs.
Our agents cover ALL buildings
To request further information or arrange a viewing, contact any one of us.



